Maison neuve à
Ailly-sur-Somme
(80470) Référence :
MJ2279157-0_2
Prix du projet : Maison avec Terrain
prix 294 291 €
- 5 pièces
- 4 chambres
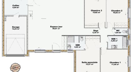
- Surface maison 113 m2
VENTE d'une maison de 5 pièces (113 m²) à Ailly-sur-Somme
MAISON 5 PIÈCES NEUVE - PROCHE D'AMIENS
En vente : à quelques minutes de la gare, nous vous présentons cette maison de 5 pièces de plain-pied de 113 m² et de 308 m² de terrain à Ailly-sur-Somme (80470).
Son intérieur dispose de quatre chambres, d'une cuisine et de deux salles de bains. Cette maison est neuve.
Le Collège du Val de Somme, l'École Maternelle la Rotonde et l'École Élémentaire Aimé Merchez sont implantés à moins de 10 minutes à pied. Niveau transports, on trouve la gare Ailly-sur-Somme à quelques pas de la maison. Les autoroutes A16 et A29 et les nationales N1 et N25 sont accessibles à moins de 9 km et Amiens se situe à 8 km. Il y a deux tennis, quatre commerces, deux boulangeries et un bureau de poste à quelques minutes du bien.
Elle est proposée à l'achat pour 294 291 €.
Contactez notre agence (JACQUEMONT Maxime : O6-14-54-18-76) pour toute information sur cette maison ou sur les démarches à suivre. Concrétisez vos projets immobiliers avec Maisons Les Naturelles Abbeville.
Mentions légales
Terrain proposé par un partenaire foncier selon disponibilités et autorisation de publicité au prix de 55 500 €. Hors droit d'enregistrement et frais de notaire. Terrain + Maison proposés au prix de 238 791 € (Hors branchements et raccordements, papiers peints, peintures, revêtement de sol dans les chambres. Tarif modifiable sans préavis). Etiquette énergie : A. Différents modèles disponibles pour ce terrain. Assurances et garanties du constructeur (RC professionnelle, décennale, dommage ouvrage, garantie de remboursement de l'acompte, livraison à prix et délai convenu) : https://www.maisonslesnaturelles.fr/informations-legales/.Agence Maisons Les Naturelles de Abbeville (80100)
- Téléphone :
- 03 22 19 22 55
- Adressse :
- 2 rue Lesueur
80100 Abbeville, France
