Maison neuve à
Abbeville
(80100) Référence :
CC2252364_2
Prix du projet : Maison avec Terrain
prix 314 779 €
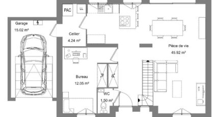
- 8 pièces
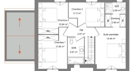
- 5 chambres
- Surface maison 123 m2
VENTE : maison de 8 pièces (123 m²) à Épagne-Épagnette
EMPLACEMENT PRIVILÉGIÉ - MAISON 8 PIÈCES NEUVE
À 43 km de la Manche, nous sommes heureux de vous proposer à vendre, bénéficiant d'un emplacement privilégié dans Épagne-Épagnette (80580), cette maison de 8 pièces de 123 m² et de 1 100 m² de terrain.
Il s'agit d'une maison de 2 niveaux. Son intérieur se divise en cinq chambres, une cuisine et deux salles de bains. Cette maison est neuve.
Cette maison se trouve dans un secteur prisé. On y trouve une école maternelle. Côté transports en commun, il y a deux gares (Pont-Remy et Abbeville) à moins de 10 minutes en voiture. Les autoroutes A16 et A28 sont accessibles à moins de 7 km. On trouve un commerce à proximité.
Son prix de vente est de 314 779 €.
N'hésitez pas à prendre contact avec Camille CISSEVILLE (tél : 06-86-73-58-15) pour plus de renseignements sur la maison, sur les démarches à suivre ou sur les modalités de vente. Donnez vie à vos projets immobiliers avec Maisons Les Naturelles Abbeville.
Mentions légales
Terrain proposé par un partenaire foncier selon disponibilités et autorisation de publicité au prix de 82 500 €. Hors droit d'enregistrement et frais de notaire. Maison proposée, avec un contrat de construction de maison individuelle, dans le cadre de la loi du 19/12/1990, au prix de 232 279 € (Hors branchements et raccordements, papiers peints, peintures, revêtement de sol dans les chambres, qui sont chiffrés dans les travaux qui restent à charge du client. Tarif modifiable sans préavis). Étiquette énergie : A. Différents modèles disponibles pour ce terrain. Assurances et garanties du constructeur comprises (RC professionnelle, décennale, dommage ouvrage).Agence Maisons Les Naturelles de Abbeville (80100)
- Téléphone :
- 03 22 19 22 55
- Adressse :
- 2 rue Lesueur
80100 Abbeville, France
